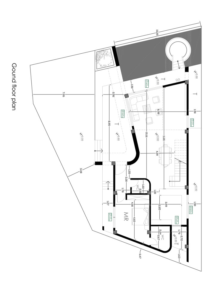
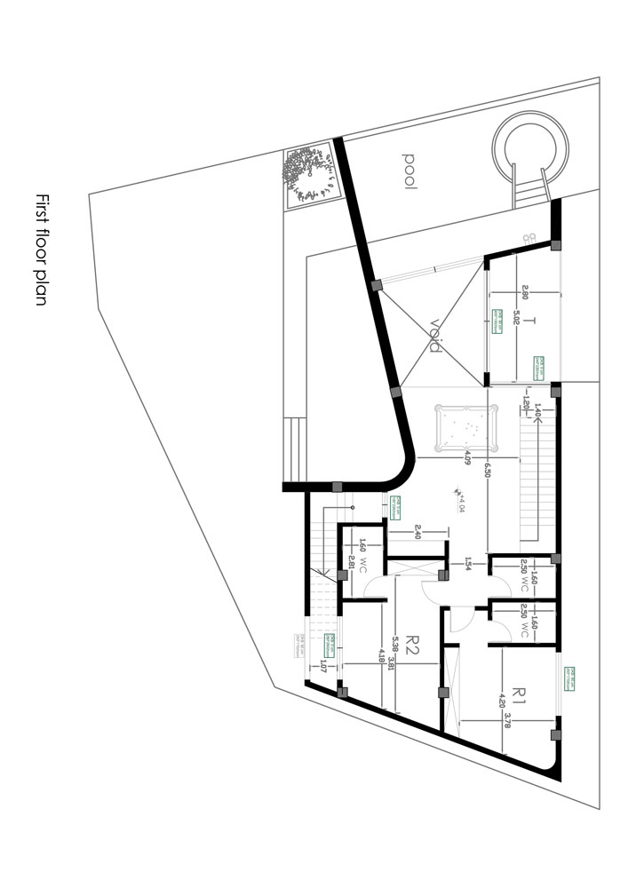
Curve Villa
project info
- project type
- residential
- status
- Compeleted
- design year
- 2020
- built area
- 400 m2
- Location
- Kelarabad, Mazandaran, Iran
- Client
- Mr Fallahi
team
- Architect
- Mohammadreza Kohzadi
- Architect Assistant
- Narges Sefidabi
- Rendering
- MohammadHosein Ashouri
- Graphic
- Armin Saraei




























