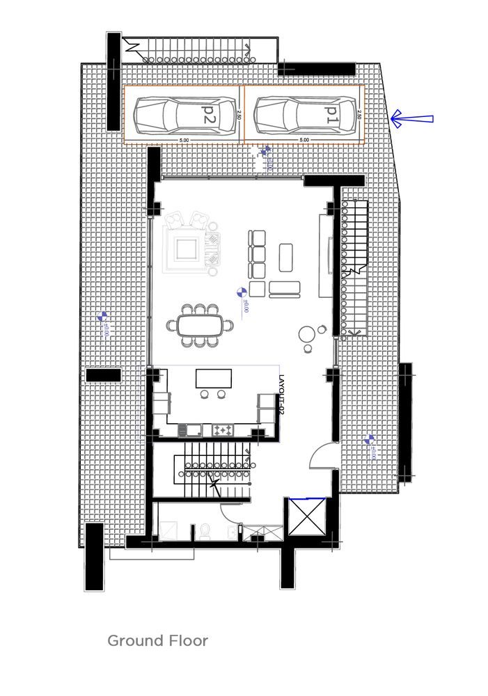
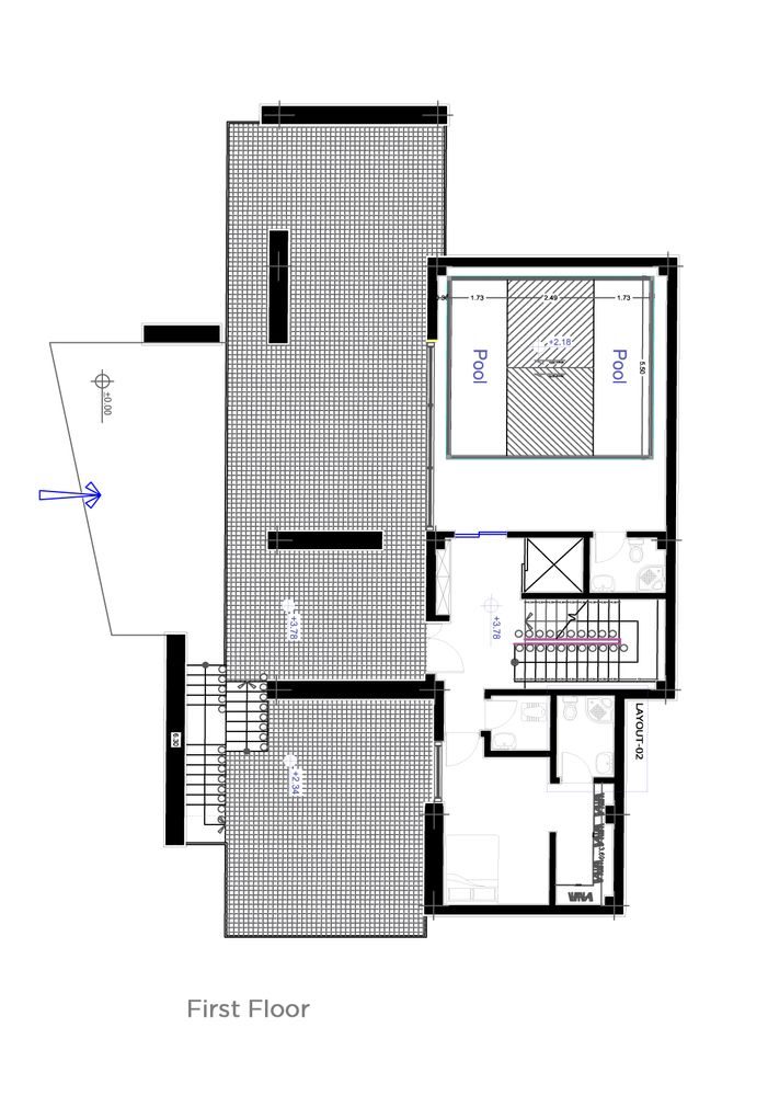
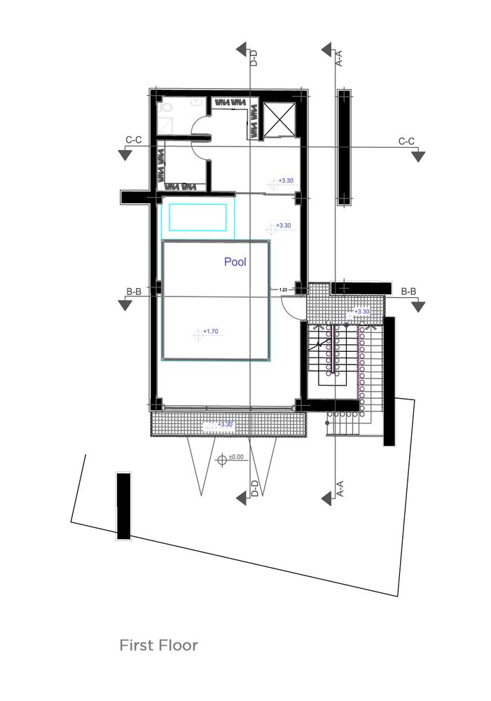
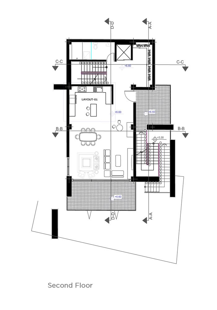
Larsanvar Shahrak
project info
- project type
- Villa
- status
- concept
- design year
- 2019
- built area
- 4700 m2
- Location
- Ramsar, Mazandaran, Iran
- Client
- Mr. Hosseini
team
- Architect
- Mohammadreza Kohzadi
- Architect Assistant
- Narges Sefidabi, Parinaz Bahadori
- design team
- Maryam Shojaei, Hoorie Shafiei, Elnaz Sadegi Garmaroudi, Saba Bahrami, Shaghayegh Siah Moshte'ei, Maede Izak Mehri, Samieh Satari
- Presentation
- Hossein Aghaei, Mehrdad Bagheri, Rahim Vardan, Arash Asadi
- Graphic
- Niloofar Moghimi





























