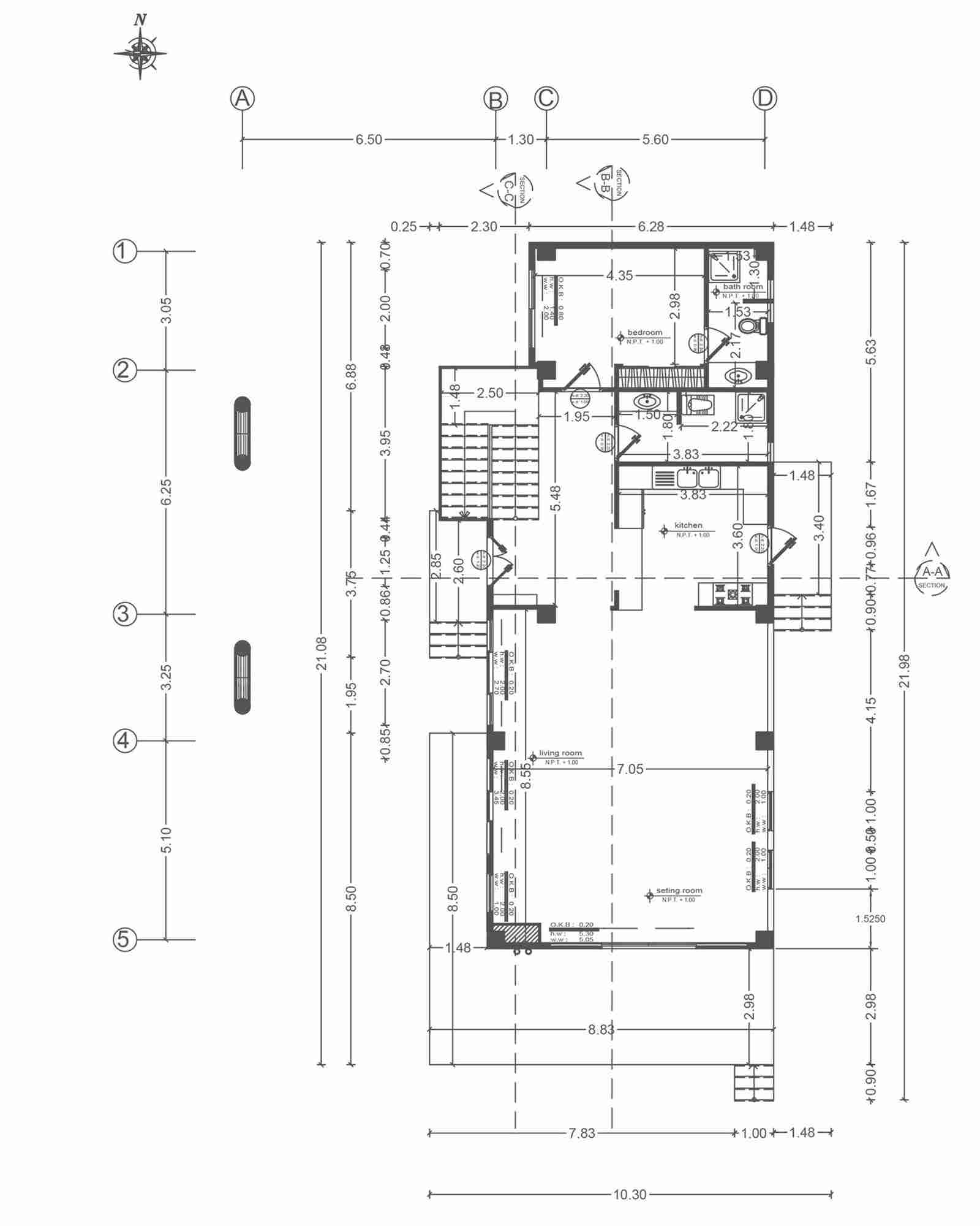
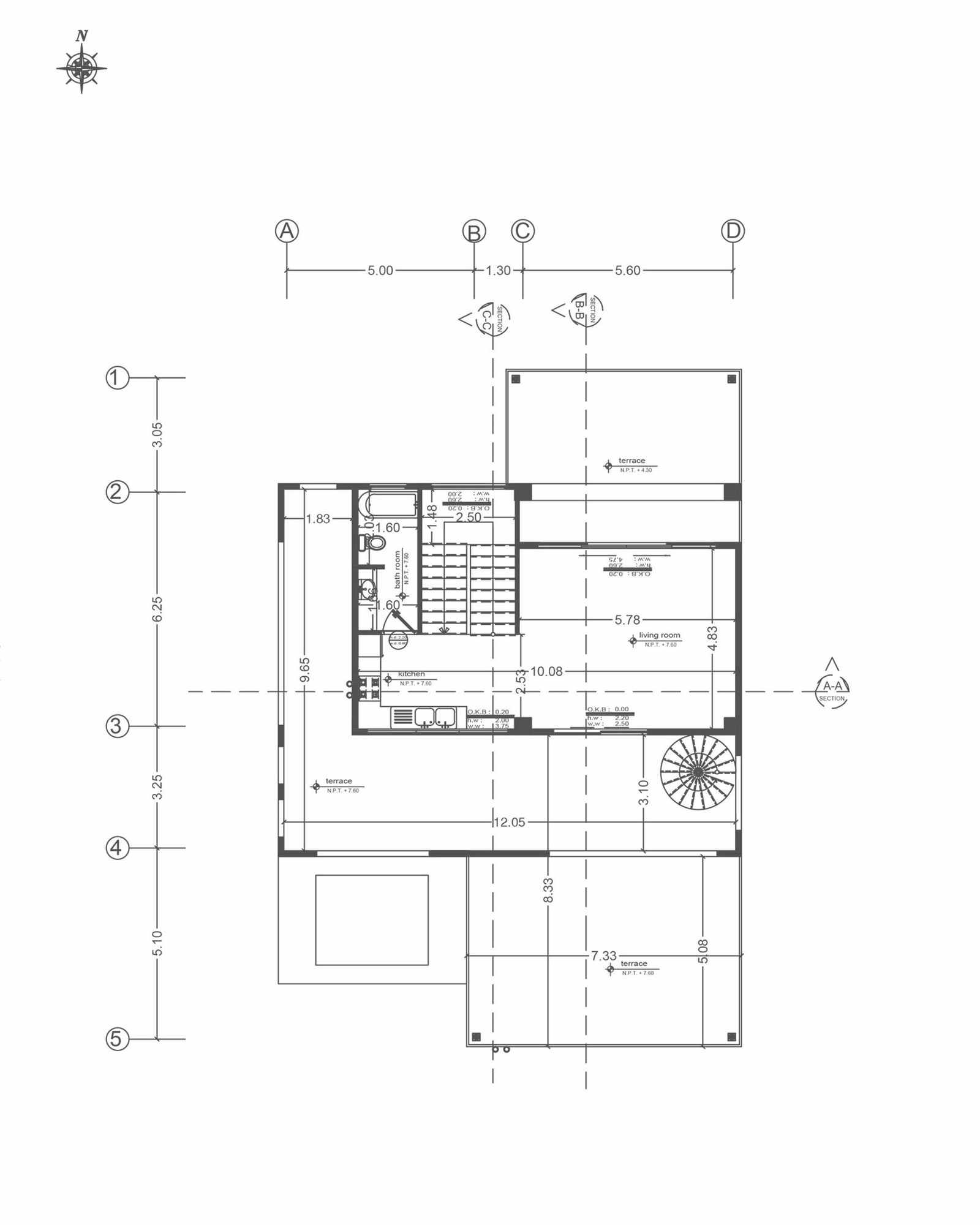
Tooska Villa
project info
- project type
- Villa
- status
- Compeleted
- design year
- 2018
- built area
- 312 m2
- Location
- Nowshahr, Mazandaran, Iran
- Client
- Mr Moosavi
team
- Architect
- Mohammadreza Kohzadi
- design team
- Neda Mirani, Mohammad Aghajani, Moateza Alimohamadi, Hossein Aghaei, Niloofar Ahmadsadeghi
- Structure Design
- Eng Chamani
- Photography
- Deed Studio























